Thiết kế nhà 10x10m 2 tầng tân cổ điển đẹp sang trọng

Cập nhật ngày 21/10/2025. Biên tập bởi 3B Design

Nếu bạn đang tìm kiếm một mẫu nhà 2 tầng 100m2 vừa sang trọng, vừa tiện nghi, thì phong cách tân cổ điển chính là lựa chọn hoàn hảo. Sự kết hợp giữa đường nét cổ điển tinh tế và kiến trúc hiện đại mang đến không gian sống đẳng cấp, bền vững theo thời gian. 3B Design giới thiệu mẫu thiết kế nhà 10x10m 2 tầng phong cách tân cổ điển đẹp, sang trọng. Ngôi nhà 2 mặt tiền được thiết kế với hình khối cân đối, giàu thẩm mỹ mang lại ấn tượng mạnh ngay từ cái nhìn đầu tiên. Mời bạn tham khảo thiết kế chi tiết dưới đây!

Nhà 10x10m 2 tầng tân cổ điển
Thiết kế nhà 10x10m 2 tầng tân cổ điển 2 mặt tiền
5/5 - (3 bình chọn)

Tổng quan thiết kế nhà 2 tầng 10x10m (100m2) phong cách tân cổ điển

Diện tích & quy mô:

  • Diện tích xây dựng: 100m2 (10x10m).
  • Số tầng: 2 tầng.
  • Phong cách: Tân cổ điển.
  • Địa điểm xây dựng: Cát Hải, Hải Phòng.
  • Đặc điểm nổi bật: 2 mặt tiền, kiến trúc sang trọng, mặt đứng đối xứng, mái ngói màu xám ghi thanh lịch.

Công năng bố trí:

  • Tầng 1: Phòng khách – bếp ăn – 1 phòng ngủ – 1 WC.
  • Tầng 2: 1 phòng ngủ – 1 phòng thờ – 1 WC – khu giặt phơi.

Thiết kế khoa học, đảm bảo tính thẩm mỹ và sự tiện nghi cho gia đình 3–4 người sinh sống.

Kiến trúc nhà 10x10m 2 tầng
Thiết kế kiến trúc tổng thể nhà 10x10m 2 tầng tân cổ điển

Thiết kế chi tiết nhà 10x10m 2 tầng phong cách tân cổ điển

3b Design mời bạn cũng tham khảo thiết kế chi tiết và phân tích không gian sống cho ngôi nhà này. Ngôi nhà được thiết kế với mục đích sử dụng là nơi ở cho gia đình có ít thành viên và là nơi sum họp gia đình mỗi dịp lễ, Tết, giỗ chạp… Vì thế các kiến trúc sư của 3B Design đề xuất giải pháp thiết kế với công năng gồm 2 phòng ngủ và các không gian sinh hoạt chung có diện tích lớn.

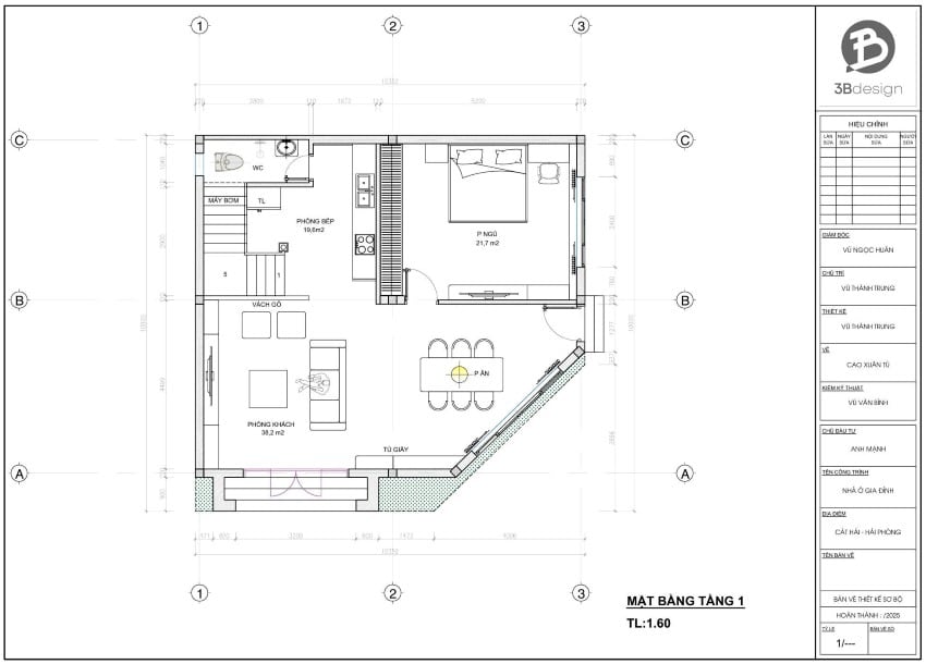
Thiết kế công năng tầng 1

Phòng 1 gồm các không gian: Phòng khách, bếp và 1 phòng ngủ. Phòng khách là không gian sinh hoạt chung và đón tiếp khách sang trọng. Định hướng sử dụng nội thất gỗ tự nhiên cao cấp. Cửa kính lớn mở ra mặt tiền giúp tận dụng tối đa ánh sáng tự nhiên.

Khu bếp và phòng ăn ấm cúng và tiện lợi. Thiết kế mở liên thông với phòng khách, tạo sự kết nối không gian. Tủ bếp chữ I tiện dụng. Bộ bàn ăn 6 ghế  và có thể mở rộng đặt cạnh cửa sổ, giúp bữa ăn gia đình thêm thoải mái.

Ngoài ra, tầng 1 được bố trí thêm 1 phòng ngủ riêng tư và tiện lợi cho người lớn tuổi. Bố trí gần cầu thang, thuận tiện di chuyển. Thang bộ rộng rãi giúp di chuyển và vận chuyển đồ đạc thuận tiện giữa các tầng.

Thiết kế công năng nhà 10x10m 2 tầng
Thiết kế công năng nhà 10x10m 2 tầng

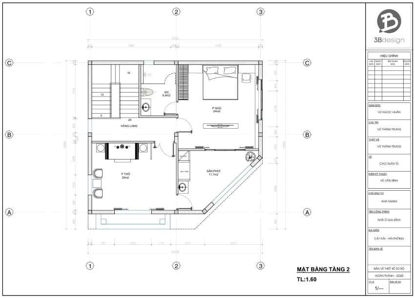
Thiết kế công năng tầng 2

Tầng 2 được bố trí các không gian: Phòng ngủ master, phòng thờ, sân phơi và 1 wc. Phòng ngủ master được thiết kế rộng rãi, thoải mái. Tab đầu giường đối xứng, tủ tường gọn gàng giúp tiết kiệm diện tích. Ánh sáng tự nhiên được tận dụng tối đa từ cửa sổ và ban công mặt tiền.

Phòng thờ được đặt tại vị trí trang nghiêm, chuẩn phong thủy. Phù hợp với tuổi gia chủ và hướng nhà. Bố trí ở vị trí trung tâm tầng 2, thông thoáng, tránh gió lùa.

Khu giặt phơi được thiết kế tiện dụng và gọn gàng. Thiết kế liền kề phòng thờ, có mái che và hệ thống thoát nước tốt. Có thể bố trí thêm cây xanh nhỏ, tạo không gian nghỉ ngơi thư giãn nhẹ nhàng. Ngoài ra, sân phơi còn được thiết kế bố trí máy phát điện, sân ướt, tủ đồ ngoài trời nhàm mang lại tiện ích tốt nhất cho gia chủ.

Công năng tầng 2 nhà 10x10m
Thiết kế công năng tầng 2 nhà 10x10m

Tham khảo các mẫu thiết kế nhà phố đẹp.

Thiết kế ngoại thất nhà 10x10m 2 tầng – dấu ấn sang trọng với phong cách tân cổ điển

Ngôi nhà 2 tầng 100m2 nổi bật với những chi tiết phào chỉ nhẹ nhàng, kết hợp với hệ cột trụ vuông khỏe khoắn mang đến vẻ bề thế nhưng không rườm rà. Màu sơn trắng kem chủ đạo tôn lên vẻ thanh lịch, kết hợp cùng mái ngói ghi đậm giúp tổng thể hài hòa và tinh tế.

Hai mặt tiền được thiết kế thông thoáng, mở ra tầm nhìn đẹp và đón gió tự nhiên. Ban công tầng mềm mại, lan can sắt mỹ thuật đen bóng tạo điểm nhấn mang hơi hướng châu Âu cổ điển.

Thiết kế mặt tiền cửa chính
Thiết kế mặt tiền cửa chính nhà 2 tầng 10x10m
Mặt tiền cửa phụ
Phối cảnh mặt tiền cửa phụ nhà 10x10m

Tham khảo thêm các mẫu thiết kế nhà phố 3 tầng tân cổ điển đẹp.

Ưu điểm của thiết kế nhà 100m2 2 tầng 10x10m

  • Thiết kế 2 mặt tiền thoáng đãng, tận dụng ánh sáng và gió tự nhiên.
  • Phong cách tân cổ điển sang trọng, thể hiện đẳng cấp và gu thẩm mỹ tinh tế.
  • Bố trí công năng khoa học, phù hợp gia đình có 3–5 thành viên.
  • Vật liệu hiện đại – bền đẹp theo thời gian: cửa kính, sắt mỹ thuật, đá ốp tự nhiên…
  • Tối ưu chi phí thi công, phù hợp ngân sách tầm trung đến cao cấp.

Gợi ý khi thiết kế nhà 10x10m 2 tầng tân cổ điển

Một số gợi ý giúp bạn có một không gian sống đẹp, sang trọng:

  • Chọn tông màu trắng – kem – vàng nhạt để làm nổi bật kiến trúc nhà.
  • Hạn chế quá nhiều chi tiết trang trí rườm rà, giữ nét nhẹ nhàng, tinh tế.
  • Sử dụng vật liệu hiện đại (cửa nhôm kính, đá ốp tự nhiên) để tăng độ bền và dễ bảo trì.
  • Nhà có 2 mặt tiền nên tận bố trí không gian sinh hoạt mở, kết hợp cây xanh hoặc tiểu cảnh.

3B Design – Thiết kế thi công xây dựng nhà trọn gói uy tín

Nếu bạn đang tìm đơn vị thiết kế – thi công nhà 2 tầng 100m2 tân cổ điển uy tín thì 3B Design với đội ngũ kiến trúc sư nhiều năm kinh nghiệm, luôn sẵn sàng mang đến cho bạn giải pháp tối ưu nhất từ bản vẽ thiết kế đến thi công hoàn thiện thực tế.

Chúng tôi cam kết chất lượng thiết kế, thi công xây dựng hàng đầu hiện nay:

Cam kết về thiết kế

3B Design cam kết chất lượng và tiến độ thiết kế:

  • Tối ưu hóa không gian sử dụng.
  • Thiết kế cá nhân hóa cho từng gia chủ.
  • Thiết kế đúng tiến độ, đúng tiêu chuẩn.
  • Tư vấn thiết kế tận tâm, chu đáo với đội ngũ kiến trúc sư là chuyên gia với gần 15 năm kinh nghiệm.
  • Cam kết hoàn tiền nếu không ưng ý thiết kế.
Nhân sự 3B Design
Nhân sự thiết kế 3B Design – chuyên nghiệp, năng động

Cam kết về thi công xây dựng

Cam kết về chất lượng thi công của 3B Design:

  • Hỗ trợ thủ tục pháp lý (giấy phép xây dựng, cải tạo…).
  • Sử dụng vật tư, vật liệu nguồn gỗ rõ ràng, đúng báo giá – Sai chủng loại bồi thường gấp đôi.
  • Đảm bảo tiến độ thi công.
  • Có kỹ sư giám sát tại công trình. Báo cáo chất lượng thi công hàng tuần.
  • Bảo hành công trình xây dựng 5 năm.

Mẫu thiết kế nhà 100m2 2 tầng 10x10m phong cách tân cổ điển mang đến vẻ đẹp cân đối, tinh tế và sang trọng. Đây là lựa chọn lý tưởng cho những gia đình yêu thích sự đẳng cấp nhưng vẫn gần gũi, tiện nghi trong sinh hoạt hàng ngày.

Liên hệ ngay với 3B Design để được tư vấn và sở hữu thiết kế không gian sống hoàn hảo cho gia đình bạn.

    3B DESIGN CAM KẾT

    Hoàn tiền thiết kế

    Hoàn 100% chi phí thiết kế khi khách hàng không hài lòng

    Đảm bảo đúng tiến độ cam kết

    Thiết kế và thi công đảm bảo đúng quy trình, đúng tiến độ

    Chịu trách nhiệm hết vòng đời sản phẩm

    Cam kết bảo trì sản phẩm vĩnh viễn, định kỳ 6 tháng/lần

    Bảo hành 3 năm

    Các sản phẩm được bảo hành 3 năm. Được sửa chữa MIỄN PHÍ nếu xảy ra lỗi từ nhà sản xuất

    Bảo hành sau 3h

    Cam kết có mặt chậm nhất 3h sau khi khách hàng báo bảo hành

    Hỗ trợ tháo lắp

    Hỗ trợ tháo lắp khi gia chủ có nhu cầu thay đổi nơi ở mới

    icon hotline HOTLINE: 0981.017.386
    icon đặt lịch thiết kế ĐẶT LỊCH THIẾT KẾ