Thiết kế nhà phong cách Indochine 6x15m 4 tầng 2 mặt tiền

Cập nhật ngày 23/10/2025. Biên tập bởi 3B Design

Nếu bạn yêu thích kiến trúc phong cách Á Đông và vẻ sang trọng của kiến trúc phương Tây, thì phong cách Indochine (Đông Dương) chính là lựa chọn lý tưởng cho tổ ấm của bạn. Mẫu thiết kế nhà phong cách Indochine 6x15m 4 tầng 2 mặt tiền dưới đây là sự kết hợp tinh tế giữa nét truyền thống Việt Nam và kiến trúc Pháp cổ điển. Thiết kế này mang đến không gian sống vừa ấm cúng, tinh tế, vừa đẳng cấp, thời thượng. Mời bạn tham khảo thiết kế của công trình này trong bài viết dưới đây.

Nhà phong cách Indochine 6x15m
Mẫu thiết kế nhà phong cách Indochine 4 tầng 6x15m đẹp
5/5 - (1 bình chọn)

Thông tin tổng quan về mẫu thiết kế nhà 6x15m 4 tầng phong cách Indochine

Ngôi nhà được xây dựng trên khu đất 8x19m, quy mô 4 tầng, có 2 mặt tiền giúp đón gió và ánh sáng tự nhiên tối đa — một ưu thế lớn trong kiến trúc đô thị hiện nay.

Một số thông tin tổng quan về công trình:

  • Diện tích xây dựng: 6x15m (90m2/sàn).
  • Diện tích khu đất: 8x19m.
  • Quy mô: 4 tầng.
  • Phong cách kiến trúc: Indochine (Đông Dương).
  • Địa điểm xây dựng: Hội An, Đà Nẵng.

Đặc điểm nổi bật: 2 mặt tiền thông thoáng, thiết kế tối ưu công năng và thẩm mỹ. Bố trí công năng từng tầng:

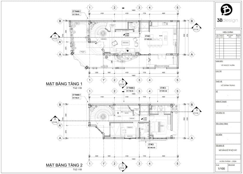
  • Tầng 1: Phòng khách, bếp – ăn, 1 phòng ngủ, 1 WC.
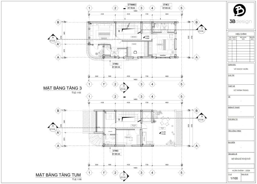
  • Tầng 2 – 3: Mỗi tầng có 2 phòng ngủ, 2 WC khép kín.
  • Tầng 4: 1 phòng ngủ, 1 WC, không gian kỹ thuật, khu giặt phơi, sân vườn.
Kiến trúc nhà phong cách Indochine 6x15m
Thiết kế kiến trúc nhà phong cách Indochine 6x15m 4 tầng

Tham khảo các mẫu thiết kế biệt thự đẹp.

Thiết kế kiến trúc và công năng chi tiết nhà 4 tầng 6x15m phong cách Indochine

Ngôi nhà 6x15m phong cách Indochine với thiết kế mặt tiền hài hòa, mái ngói dốc nhẹ, cùng cửa vòm đặc trưng gợi nhớ kiến trúc Pháp cổ. Hai mặt tiền được xử lý tinh tế với hệ cửa chớp và vòm cửa uốn cong. Cách thiết kế mang lại cho kiến trúc tính thẩm mỹ cao, lại vừa tối ưu khả năng thông gió.

Tông màu vàng, trắng nhấn nhá, kết hợp mái ngói đỏ và các vật liệu tự nhiên như gạch bông, gỗ, đá granite, giúp tổng thể ngôi nhà trở nên ấm áp, thanh lịch và có chiều sâu nghệ thuật.

Thiết kế công năng tầng 1

Tầng 1 được thiết kế với không gian phòng khách và bếp. Cùng với đó là các không gian được thiết kế mở kết nối với nhau và kết nối với không gian sân vườn bằng các ô cửa lớn. Một cầu thang bộ được thiết kế trước nhà để đi lên tầng trên, tạo nên một không gian sinh hoạt chung rộng rãi cho tầng 1 của ngôi nhà.

Tủ bếp chữ L gọn gàng, khu ăn bố trí sát cửa sổ hướng sân sau, tận dụng ánh sáng tự nhiên. Phòng khách và bếp liên thông giúp không gian thoáng và dễ tương tác.

Công năng tầng 1 và 2
Thiết kế công năng tầng 1 và 2 nhà 6x15m phong cách Indochine

Thiết kế công năng tầng 2 và tầng 3

Mỗi tầng gồm 2 phòng ngủ với WC khép kín, thiết kế hướng đến sự thư giãn và riêng tư. Các không gian phòng ngủ này đều được thiết kế độc lập với nhau và kết nối với sảnh thang bộ và thanh máy. Cách thiết kế này mang đến sự thuận tiện khi di chuyển trong ngôi nhà.

Các phòng đều được kết nối với không gian bên ngoài bằng cửa sổ rộng mở ra ban công, đón nắng sớm. Các khoảng không ngoài trời như ban công, sảnh… được thiết kế bồn trồng cây tạo cảnh quan xanh mát và không khí thoải mái cho ngôi nhà.

Thiết kế tầng 4 – Không gian đa năng và gắn kết với thiên nhiên

Tầng 4 là điểm nhấn của ngôi nhà, kết hợp công năng sinh hoạt và thư giãn ngoài trời. Phòng ngủ nhỏ: dành cho khách hoặc thành viên trong gia đình cần không gian riêng.

Khu giặt phơi & kỹ thuật: bố trí gọn gàng, dễ sử dụng. Sân vườn trên mái: lát gạch chống trượt, bố trí cây xanh, bàn trà, ghế nghỉ. Đây là nơi lý tưởng để thư giãn, đọc sách hoặc thưởng trà buổi sáng.

Công năng tầng 3 và 4
Thiết kế công năng tầng 3 và 4 nhà 4 tầng phong cách Indochine

Thiết kế kiến trúc nhà phong cách Indochine 6x15m 4 tầng 2 mặt tiền

Kiến trúc ngôi nhà được thiết kế thu hút với màu vàng chủ đạo nổi bật.  Sử dụng mái ngỏ đỏ và các chi tiết đặc trưng của phong cách thiết kế Đông Dương như cửa vòm, cột và các hoa văn trang trí… CÙng với đó, cổng và sân vườn được thiết kế hài hòa, đẹp mắt mang đến không gian sống thoải mái cho ngôi nhà.

Phối cảnh mặt tiền nhà Indochine 6x15m
Thiết kế phối cảnh kiến trúc mặt tiền nhà Indochine 6x15m
Phối cảnh mặt bên ngôi nhà
Thiết kế phối cảnh mặt bên ngôi nhà
Không gian sân vườn
Thiết kế không gian sân vườn

Tham khảo thêm các mẫu thiết kế biệt thự phong cách Đông Dương đẹp.

Các đặc trưng của thiết kế nhà phố phong cách Indochine

Thiết kế nhà phố phong cách Indochine thường có một số đặc trưng nổi bật trong kiến trúc và nội thất:

  • Chất liệu tự nhiên: gỗ, tre, mây, gạch bông – tạo cảm giác gần gũi, bền bỉ theo thời gian.
  • Màu sắc đặc tưng: vàng, trắng, be, nâu, xanh rêu – gợi nét hoài cổ, thanh thoát.
  • Họa tiết nghệ thuật: hoa văn truyền thống, phù điêu, tranh Đông Dương.
  • Không gian mở: kết nối trong – ngoài, giúp nhà luôn thoáng đãng, nhiều ánh sáng.

Ưu điểm nổi bật của mẫu thiết kế nhà phong cách Indochine 6x15m

Mỗi ngôi nhà tùy theo vị trí, địa hình mà đều có các ưu điểm riêng nổi bật. Ngôi nhà trong bài viết này sở hữu vị trí đắc địa gồm 2 mặt tiền, vì thế nó có những ưu điểm nổi bật mà hiếm có ngôi nhà nào có được:

  • Hai mặt tiền thoáng sáng, tối ưu tầm nhìn và lưu thông không khí.
  • Phong cách Indochine sang trọng, bền vững theo thời gian.
  • Bố trí công năng hợp lý, phù hợp gia đình 4–6 thành viên. Ngoài ra, có thể linh hoạt để khai thác dịch vụ lưu trú như homestay hoặc Apartment…
  • Tích hợp sân vườn trên mái, tạo không gian thư giãn độc đáo.
  • Tối ưu diện tích xây dựng, vẫn đảm bảo sự rộng rãi và riêng tư.
Kiến trúc nhà 4 tầng 6x15m Indochine
Thiết kế kiến trúc nhà 4 tầng 6x15m Indochine nổi bật

Tham khảo mẫu thiết kế nội thất nhà 4 tầng 6x15m phong cách Indochine

Cùng với thiết kế kiến trúc, thiết kế nội thất cũng là điều mà nhiều gia chủ quan tâm. Việc thiết kế nội thất giúp bạn sắp xếp không gian sống một cách tiện nghi, thoải mái và khoa học.

Nội thất nhà phố phong cách Indochine mang đến vẻ đẹp sang trọng, thanh lịch và gần gũi. Bạn có thể tham khảo mẫu nhà liền kề 4 tầng 6x15m với thiết kế nội thất phong cách Indochine dưới đây để có thêm ý tưởng về không gian sống cho gia đình mình.

Một số thông tin về công trình:

  • Diện tích xây dựng: 6x15m.
  • Quy mô: 4 tầng.
  • Phong cách: Indochine (Đông Dương).
  • Địa điểm: Vinhomes Marina, Hải Phòng.
  • Công năng: Khách, bếp, 3 phòng ngủ, phòng thờ, phòng sinh hoạt chung, sân vườn…

3B Design – Thiết kế và thi công xây dựng nhà trọn gói, uy tín

Mẫu thiết kế nhà phong cách Indochine 6x15m là sự giao thoa hoàn hảo giữa vẻ đẹp truyền thống Á Đông và hơi thở hiện đại. Không chỉ mang đến không gian sống sang trọng, tiện nghi, ngôi nhà còn thể hiện gu thẩm mỹ tinh tế và cá tính riêng của gia chủ.

3B Design mong muốn đồng hành cùng bạn trong việc thiết kế không gian sống phù hợp. Chúng tôi cam kết chất lượng thiết kế, thi công xây dựng hàng đầu hiện nay:

Cam kết về thiết kế

3B Design cam kết chất lượng và tiến độ thiết kế:

  • Tối ưu hóa không gian sử dụng.
  • Thiết kế cá nhân hóa cho từng gia chủ.
  • Thiết kế đúng tiến độ, đúng tiêu chuẩn.
  • Tư vấn thiết kế tận tâm, chu đáo với đội ngũ kiến trúc sư là chuyên gia với gần 15 năm kinh nghiệm.
  • Cam kết hoàn tiền nếu không ưng ý thiết kế.

Cam kết về thi công xây dựng

Cam kết về chất lượng thi công của 3B Design:

  • Hỗ trợ thủ tục pháp lý (giấy phép xây dựng, cải tạo…).
  • Sử dụng vật tư, vật liệu nguồn gỗ rõ ràng, đúng báo giá – Sai chủng loại bồi thường gấp đôi.
  • Đảm bảo tiến độ thi công.
  • Có kỹ sư giám sát tại công trình. Báo cáo chất lượng thi công hàng tuần.
  • Bảo hành công trình xây dựng 5 năm.

Trên đây, chúng tôi giới thiệu cùng bạn mẫu thiết kế nhà phong cách Indochine 6x15m 4 tầng với 2 mặt tiền đẹp, sang trọng. Bạn hãy liên hệ ngay với 3B Design để được tư vấn và báo giá nhanh nhất nhé!

    3B DESIGN CAM KẾT

    Hoàn tiền thiết kế

    Hoàn 100% chi phí thiết kế khi khách hàng không hài lòng

    Đảm bảo đúng tiến độ cam kết

    Thiết kế và thi công đảm bảo đúng quy trình, đúng tiến độ

    Chịu trách nhiệm hết vòng đời sản phẩm

    Cam kết bảo trì sản phẩm vĩnh viễn, định kỳ 6 tháng/lần

    Bảo hành 3 năm

    Các sản phẩm được bảo hành 3 năm. Được sửa chữa MIỄN PHÍ nếu xảy ra lỗi từ nhà sản xuất

    Bảo hành sau 3h

    Cam kết có mặt chậm nhất 3h sau khi khách hàng báo bảo hành

    Hỗ trợ tháo lắp

    Hỗ trợ tháo lắp khi gia chủ có nhu cầu thay đổi nơi ở mới

    icon hotline HOTLINE: 0981.017.386
    icon đặt lịch thiết kế ĐẶT LỊCH THIẾT KẾ