Thiết kế biệt thự 3 tầng phong cách Indochine 7.3x14m

Cập nhật ngày 12/01/2026. Biên tập bởi 3B Design

Thiết kế biệt thự 3 tầng phong cách Indochine được gia chủ yêu thích nhờ sự kết hợp hài hòa giữa nét truyền thống Á Đông và tinh thần kiến trúc Pháp sang trọng. Mẫu biệt thự Indochine 3 tầng kích thước 7.3x14m tại Hải Phòng, xây dựng trên khu đất xấp xỉ 500m2 là minh chứng rõ nét cho lối sống đẳng cấp, tinh tế và bền vững theo thời gian. Mời bạn cùng tham khảo mẫu thiết kế do 3B Design thiết kế và thi công xây dựng trọn gói này nhé.

Biệt thự 3 tầng Indochine đẹp
Thiết kế biệt thự 3 tầng Indochine 7.3x14m đẹp
5/5 - (3 bình chọn)

Thông tin tổng quan về thiết kế biệt thự 3 tầng phong cách Indochine

3B Design cung cấp một số thông tin tổng quan về mẫu thiết kế biệt thự 3 tầng này:

  • Loại hình: Biệt thự 3 tầng.
  • Phong cách: Indochine (Đông Dương).
  • Địa điểm xây dựng: An Dương – Hải Phòng.
  • Kích thước xây dựng: 7.3x14m.
  • Diện tích khu đất: Xấp xỉ 500m2.

Công năng sử dụng:

  • Tầng 1: Phòng khách + bếp + phòng ăn.
  • Tầng 2: 2 phòng ngủ khép kín.
  • Tầng 3: Phòng ngủ + phòng thờ + phòng giặt phơi.

Phân tích công năng và kiến trúc biệt thự 3 tầng phong cách Indochine

Bố trí công năng khoa học trong biệt thự 3 tầng 7.3x15m

Tầng 1 – Không gian sinh hoạt chung ấm cúng

Tầng 1 được gia chủ xác định là không gian sinh hoạt chung, kết nối các thành viên trong gia đình. Do đó, không gian tầng 1 được bố trí với phòng khách rộng rãi, khu bếp + phòng ăn bố trí liên thông, tiện nghi, thông thoáng. Cách bố trí này mang đến không gian sinh hoạt ấm cúng và thân thiết. Ngoài ra, gia chủ cũng có thể tối ưu không gian khi gia đình tổ chức các sự kiện có nhiều thành viên và khách mời.

Cửa lớn và hệ cửa sổ giúp đón gió, ánh sáng tự nhiên là điểm cộng lớn cho không gian phòng khách. Gia chủ cũng có thể tận hưởng không gian tự nhiên từ các khoảng sân vườn được thiết kế tự nhiên, gần gũi.

Công năng tầng 1 biệt thự Indochine
Thiết kế công năng tầng 1 biệt thự Indochine

Tầng 2 – Không gian nghỉ ngơi riêng tư

Tầng 2 được thiết kế gồm 2 phòng ngủ khép kín, mỗi phòng đều có WC riêng. Các không gian được thiết kế độc lập, rộng rãi và đầy đủ tiện nghi. Cách thiết kế này đảm bảo tính riêng tư cũng như mang đến không gian sống thoải mái cho mỗi thành viên trong gia đình.

Ban công thoáng, tạo sự thư giãn và đối lưu không khí. Bạn cũng có thể sáng tạo không gian với phần ban công này bằng cách trang trí cây xanh hoặc ghế thư giãn ngoài trời phù hợp với sở thích.

Thiết kế công năng tầng 2
Thiết kế công năng tầng 2 biệt thự

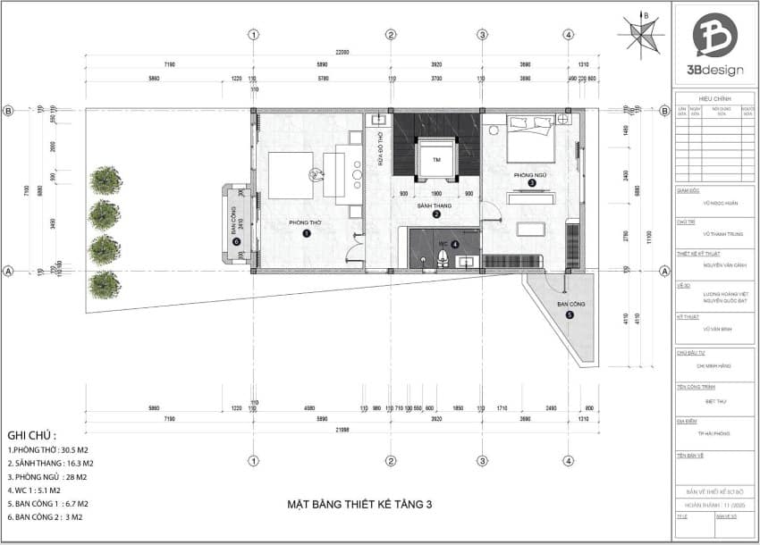
Tầng 3 – Không gian tâm linh và tiện ích

Tầng 3 được thiết kế gồm 1 phòng ngủ cho khách hoặc thành viên trong gia đình. Phòng thờ đặt tại vị trí cao, yên tĩnh, đảm bảo yếu tố phong thủy.

Đây là cách thiết kế công năng được gia chủ lựa chọn phù hợp với nhu cầu sử dụng của gia đình. Bạn có thể tham khảo thêm các cách thiết kế mặt bằng công năng khác của 3B Design.

Mặt bằng công năng tầng 3
Thiết kế mặt bằng công năng tầng 3 biệt thự

Thiết kế phối cảnh biệt thự 3 tầng phong cách Indochine

Phong cách Indochine là sự hòa quyện giữa kiến trúc Pháp cổ điển và bản sắc văn hóa Á Đông, rất phù hợp với điều kiện khí hậu cũng như gu thẩm mỹ của gia chủ Việt. Kiến trúc biệt thự thự 3 tầng phong cách Indochine được thiết kế với các đặc trưng nổi bật:

  • Kiến trúc ngoại thất sang trọng, bề thế.
  • Hình khối cân đối, tỷ lệ chuẩn mực.
  • Mái ngói dốc đặc trưng giúp chống nắng, nóng và năng nước mưa hiệu quả.
  • Hệ cột, ban công, mái mềm mại mang dấu ấn kiến trúc Đông Dương.
  • Gam màu chủ đạo: kem, nâu mang đến cảm giác ấm áp, sang trọng.

Với lợi thế khu đất rộng xấp xỉ 500m2, biệt thự được bố trí sân vườn xanh mát, tiểu cảnh và lối dạo, góp phần nâng tầm không gian sống.

Phối cảnh tổng thể biệt thự
Phối cảnh tổng thể biệt thự phong cách Indochine
Thiết kế mái đặc trưng
Thiết kế mái đặc trưng cho phong cách Đông Dương
Màu sắc hài hòa
Màu sắc hài hòa với các chi tiết đặc trưng của phong cách Đông Dương

Các ưu điểm được nhiều người yêu thích của kiến trúc Indochine

Phong cách kiến trúc và nội thất Indochine được nhiều người yêu thích vì thiết kế gần gũi, thân thuộc. Bên cạnh đó, phong cách này còn được yêu thích bởi nhiều ưu điểm khác:

  • Sang trọng, đẳng cấp nhưng không phô trương.
  • Phù hợp khí hậu miền Bắc.
  • Giá trị thẩm mỹ bền vững, không lỗi thời.
  • Thể hiện gu thẩm mỹ và chiều sâu văn hóa của gia chủ.
  • Phù hợp biệt thự có diện tích đất lớn, sân vườn rộng.
Kiến trúc Đông Dương đẹp
Phong cách kiến trúc Đông Dương đẹp, sang trọng được yêu thích

Tham khảo thêm các mẫu biệt thự phong cách Đông Dương đẹp.

3B Design – Thiết kế và thi công biệt thự phong cách Indochine 3 tầng uy tín, chuyên nghiệp

3B Design chuyên thiết kế – thi công biệt thự cao cấp phong cách Indochine, tân cổ điển, hiện đại trên khắp cả nước. Với đội ngũ kiến trúc sư giàu kinh nghiệm, am hiểu sâu về phong cách Đông Dương, chúng tôi cam kết:

Cam kết về thiết kế

3B Design cam kết chất lượng và tiến độ thiết kế:

  • Tối ưu không gian sử dụng.
  • Thiết kế cá nhân hóa cho từng gia chủ.
  • Thiết kế đúng tiến độ, đúng tiêu chuẩn.
  • Tư vấn thiết kế tận tâm, chu đáo với đội ngũ kiến trúc sư là chuyên gia với gần 15 năm kinh nghiệm.
  • Cam kết hoàn tiền nếu không ưng ý thiết kế.

Cam kết về thi công xây dựng

Cam kết về chất lượng thi công của 3B Design:

  • Hỗ trợ thủ tục pháp lý (giấy phép xây dựng, cải tạo…).
  • Sử dụng vật tư, vật liệu nguồn gỗ rõ ràng, đúng báo giá – Sai chủng loại bồi thường gấp đôi.
  • Đảm bảo tiến độ thi công.
  • Có kỹ sư giám sát tại công trình. Báo cáo chất lượng thi công hàng tuần.
  • Bảo hành công trình xây dựng 5 năm.
Biệt thự phong cách Đông Dương
Biệt thự phong cách Đông Dương được nhiều người yêu thích

Trên đây, 3B Design chia sẻ cùng bạn dự án thiết kế biệt thự phong cách Indochine 3 tầng 7.3x14m. Bạn hãy liên hệ ngay với 3B Design để được tư vấn tốt nhất nhé!

    3B DESIGN CAM KẾT

    Hoàn tiền thiết kế

    Hoàn 100% chi phí thiết kế khi khách hàng không hài lòng

    Đảm bảo đúng tiến độ cam kết

    Thiết kế và thi công đảm bảo đúng quy trình, đúng tiến độ

    Chịu trách nhiệm hết vòng đời sản phẩm

    Cam kết bảo trì sản phẩm vĩnh viễn, định kỳ 6 tháng/lần

    Bảo hành 3 năm

    Các sản phẩm được bảo hành 3 năm. Được sửa chữa MIỄN PHÍ nếu xảy ra lỗi từ nhà sản xuất

    Bảo hành sau 3h

    Cam kết có mặt chậm nhất 3h sau khi khách hàng báo bảo hành

    Hỗ trợ tháo lắp

    Hỗ trợ tháo lắp khi gia chủ có nhu cầu thay đổi nơi ở mới

    icon hotline HOTLINE: 0981.017.386
    icon đặt lịch thiết kế ĐẶT LỊCH THIẾT KẾ