Thiết kế nhà vườn tại Huế – Không gian sống đậm chất Việt

Cập nhật ngày 28/10/2025. Biên tập bởi 3B Design

Huế – vùng đất cố đô yên bình, nơi lưu giữ giá trị kiến trúc và văn hóa truyền thống Việt Nam. Trong xu hướng hiện nay, nhiều gia đình tại Huế lựa chọn thiết kế nhà vườn để tận hưởng không gian sống gần gũi với thiên nhiên, vừa mang hơi thở hiện đại, vừa đậm hồn quê Việt. Mẫu thiết kế nhà vườn tại Huế dưới đây được lấy cảm hứng từ kiến trúc Bắc Bộ truyền thống, quy mô 1 tầng với diện tích 200m2, nằm trong khuôn viên đất 700m2 xanh mát, mang đến không gian sống bình yên, mộc mạc và thoải mái. Mời bạn tham khảo mẫu thiết kế này nhé!

Thiết kế nhà vườn đẹp tại Huế
Thiết kế nhà vườn đẹp tại Huế theo phong cách Bắc Bộ
5/5 - (2 bình chọn)

Tổng quan về mẫu thiết kế nhà vườn tại Huế

  • Phong cách kiến trúc: Nhà vườn Bắc Bộ.
  • Vị trí xây dựng: Hương Thủy, TP. Huế.
  • Quy mô: 1 tầng.
  • Diện tích xây dựng: 200m2.
  • Khuôn viên đất: 700m2.
  • Công năng sử dụng: 3 phòng ngủ, phòng khách, bếp – ăn, phòng thờ.

Ngôi nhà được thiết kế theo bố cục truyền thống của nhà vườn Bắc Bộ với sân trước – hiên nhà – khối nhà chính – vườn cây bao quanh, tạo nên tổng thể cân đối, chan hòa cùng thiên nhiên.

Phối cảnh kiến trúc nhà vườn tại Huế
Thiết kế phối cảnh kiến trúc nhà vườn tại Huế

Tham khảo thêm các mẫu thiết kế nhà biệt thự vườn 1 tầng đẹp.

Thiết kế kiến trúc nhà vườn 200m2 tại Huế đậm nét Bắc Bộ

Ngôi nhà vườn 1 tầng tại Huế nổi bật với kiến trúc mái ngói đỏ truyền thống, tường sơn trắng, khung cửa gỗ nâu tự nhiên. Đây là một thiết kế gọi nhớ những hình ảnh quen thuộc của những nếp nhà xưa Bắc Bộ.

Phần hiên rộng được thiết kế nối liền với sân gạch. Đây vừa là nơi đón khách, vừa là không gian thư giãn lý tưởng cho gia đình vào mỗi buổi sáng hay chiều muộn.

Hai bên nhà được bao quanh bởi vườn cây, tiểu cảnh và cảnh quan như chòi nghỉ, hồ cá… giúp không gian mát mẻ, thanh tịnh – đúng tinh thần “nhà trong vườn, vườn trong nhà”.

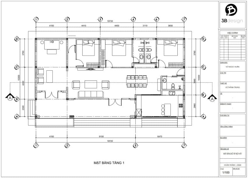
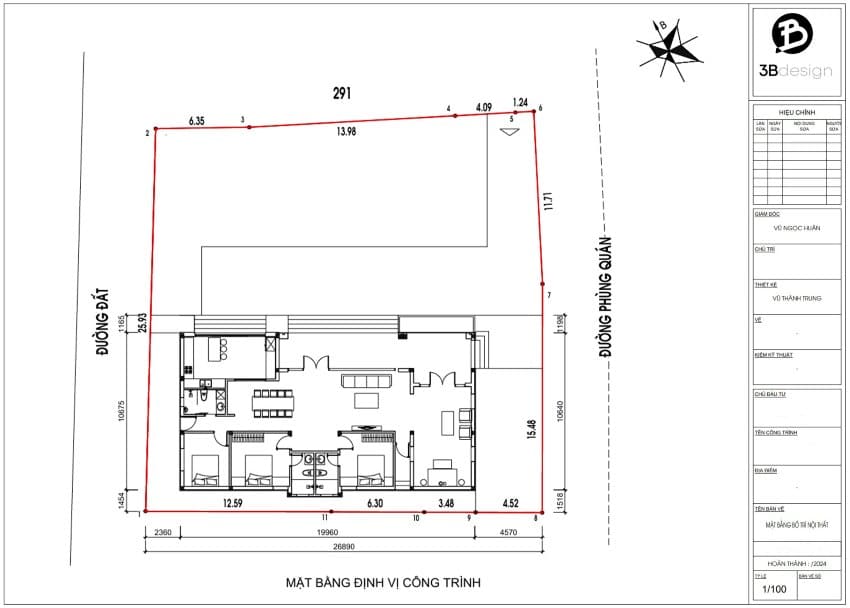
Mặt bằng tổng thể công trình
Mặt bằng tổng thể công trình

Thiết kế công năng và phối cảnh nhà vườn

Công năng ngôi nhà được thiết kế khoa học và phù hợp với nhu cầu sử dụng. Cách thiết kế mang phong cách nhà Bắc Bộ với 2 trái nhà và cũng rất hiện đại, phù hợp với phong cách sống hiện đại ngày nay.

Phòng khách được bố trí ở trung tâm ngôi nhà, ngay sau cửa chính, với không gian mở hướng ra sân vườn. Nội thất định hướng sử dụng gỗ tự nhiên mang đén cảm giác ấm cúng, gần gũi và sang trọng.

Phòng thờ được thiết kế trang nghiêm, chuẩn phong thủy nằm liền kề phòng khách. Không gian phòng thờ được thiết kế riền biệt, trang trọng. Bàn thờ hướng ra mặt tiền chính, thể hiện lòng thành kính với tổ tiên – đúng tinh thần kiến trúc Bắc Bộ truyền thống.

Khu bếp được bố trí tách biệt tương đối với khu vực khách, đảm bảo riêng tư và sạch sẽ. Không gian mở ra hiên sau, nơi đặt bàn ăn gỗ lớn, kết nối trực tiếp với vườn cây xanh – tạo cảm giác thư giãn và thoải mái khi dùng bữa.

3 phòng ngủ được thiết kế tiện nghi, yên tĩnh. Không gian phong ngủ được thiết kế riêng biệt bằng hệ vách và cửa giấu khuông. Tạo nên một không gian độc lập và riêng tư cho các không gian sinh hoạt cá nhân.

Thiết kế công năng nhà vườn Huế
Thiết kế công năng nhà vườn tại Huế
Kiến trúc mặt trước nhà vườn
Kiến trúc mặt trước nhà vườn tại Huế
Mặt tiền nhìn từ sân vườn
Mặt tiền ngôi nhà nhìn từ sân vườn

Thiết kế không gian sân vườn tự nhiên, đẹp mắt

Điểm nhấn lớn nhất của mẫu thiết kế nhà vườn tại Huế chính là không gian ngoại cảnh. Lối vào lát đá, trồng xen cỏ xanh và các loại cây từ thân mộc đến cây bụi. Vườn cây và hoa quanh nhà, kết hợp tiểu cảnh. Góc uống trà dưới giàn hoa giấy mang đến cảm giác an nhiên giữa đời sống hiện đại.

Toàn bộ khuôn viên rộng 700m2 được quy hoạch cân đối, tạo nên một hệ sinh thái thu nhỏ trong chính ngôi nhà – nơi mỗi góc nhỏ đều mang lại cảm giác thư giãn, yên bình.

Thiết kế sân vườn trước nhà
Thiết kế sân vườn trước nhà
Thiết kế sân vườn
Thiết kế không gian sân vườn nhà vườn tại Huế
Khuôn viên sân vườn từ giàn hoa giấy
Khuôn viên sân vườn từ giàn hoa giấy
Không gian trái nhà
Trái nhà với sân ướt có mái kính
Sân trái nhà để xe
Sân trái nhà làm không gian để xe

Tham khảo thêm các mẫu thiết kế biệt thự nhà vườn đẹp.

Thiết kế nhà vườn tại Huế với điểm nhấn kiến trúc Bắc Bộ

Nằm giữa cố đô Huế, ngôi nhà vườn được thiết kế theo kiến trúc Bắc Bộ với các điểm nhấn đặc biệt:

  • Mái ngói đỏ truyền thống: Gợi nhớ về nét kiến trúc xưa, chống nóng hiệu quả, phù hợp khí hậu Huế.
  • Chất liệu tự nhiên: Gỗ, tre, gạch nung – bền vững, thân thiện môi trường.
  • Không gian mở: Cửa sổ, hiên rộng, sân vườn bao quanh giúp lưu thông không khí, đón gió mát quanh năm.
  • Tinh thần tối giản: Giữ lại nét truyền thống nhưng được tối ưu công năng và tiện nghi hiện đại.

Ưu điểm của mẫu thiết kế nhà vườn tại Huế

  • Phù hợp khí hậu Huế – nhiều mưa, ẩm, cần không gian thoáng và khô ráo.
  • Giữ trọn hồn Việt, phù hợp với gia đình yêu nét truyền thống.
  • Diện tích rộng rãi (700m2), dễ dàng kết hợp cảnh quan và sinh hoạt.
  • Công năng hợp lý cho gia đình 3 thế hệ.
  • Tính thẩm mỹ cao, bền vững theo thời gian.

3B Design – Thiết kế thi công nhà vườn tại Huế trọn gói, uy tín.

Mẫu thiết kế nhà vườn tại Huế phong cách Bắc Bộ là lựa chọn hoàn hảo cho những ai yêu sự yên bình, mộc mạc nhưng vẫn muốn có không gian sống tiện nghi và sang trọng. Với bố cục hài hòa, vật liệu tự nhiên và cảnh quan xanh mát, ngôi nhà là biểu tượng của sự giao hòa giữa truyền thống và hiện đại, giữa con người và thiên nhiên.

3B Design mong muốn đồng hành cùng bạn trong việc thiết kế không gian sống phù hợp. Chúng tôi cam kết chất lượng thiết kế, thi công xây dựng hàng đầu hiện nay:

Cam kết về thiết kế

3B Design cam kết chất lượng và tiến độ thiết kế:

  • Tối ưu hóa không gian sử dụng.
  • Thiết kế cá nhân hóa cho từng gia chủ.
  • Thiết kế đúng tiến độ, đúng tiêu chuẩn.
  • Tư vấn thiết kế tận tâm, chu đáo với đội ngũ kiến trúc sư là chuyên gia với gần 15 năm kinh nghiệm.
  • Cam kết hoàn tiền nếu không ưng ý thiết kế.
Nhân sự 3B Design
Nhân sự thiết kế 3B Design

Cam kết về thi công xây dựng

Cam kết về chất lượng thi công của 3B Design:

  • Hỗ trợ thủ tục pháp lý (giấy phép xây dựng, cải tạo…).
  • Sử dụng vật tư, vật liệu nguồn gỗ rõ ràng, đúng báo giá – Sai chủng loại bồi thường gấp đôi.
  • Đảm bảo tiến độ thi công.
  • Có kỹ sư giám sát tại công trình. Báo cáo chất lượng thi công hàng tuần.
  • Bảo hành công trình xây dựng 5 năm.

Trên đây, chúng tôi giới thiệu cùng bạn mẫu thiết kế nhà vườn tại thành phố Huế xinh đẹp. Bạn hãy liên hệ ngay với 3B Design để được tư vấn và báo giá thiết kế, thi công xây dựng nhà tốt nhất nhé!

    3B DESIGN CAM KẾT

    Hoàn tiền thiết kế

    Hoàn 100% chi phí thiết kế khi khách hàng không hài lòng

    Đảm bảo đúng tiến độ cam kết

    Thiết kế và thi công đảm bảo đúng quy trình, đúng tiến độ

    Chịu trách nhiệm hết vòng đời sản phẩm

    Cam kết bảo trì sản phẩm vĩnh viễn, định kỳ 6 tháng/lần

    Bảo hành 3 năm

    Các sản phẩm được bảo hành 3 năm. Được sửa chữa MIỄN PHÍ nếu xảy ra lỗi từ nhà sản xuất

    Bảo hành sau 3h

    Cam kết có mặt chậm nhất 3h sau khi khách hàng báo bảo hành

    Hỗ trợ tháo lắp

    Hỗ trợ tháo lắp khi gia chủ có nhu cầu thay đổi nơi ở mới

    icon hotline HOTLINE: 0981.017.386
    icon đặt lịch thiết kế ĐẶT LỊCH THIẾT KẾ