Thiết kế biệt thự 1 tầng 3 phòng ngủ mái Nhật 10.5x18m

Cập nhật ngày 31/03/2026. Biên tập bởi 3B Design

Trong xu hướng kiến trúc hiện nay, các mẫu biệt thự 1 tầng mái Nhật đang ngày càng được ưa chuộng nhờ vẻ đẹp hiện đại, tinh tế và gần gũi thiên nhiên. Mẫu thiết kế biệt thự 1 tầng 3 phòng ngủ mái Nhật 10.5x18m dưới đây là giải pháp hoàn hảo cho gia đình yêu thích không gian sống rộng rãi, tiện nghi nhưng vẫn đảm bảo tính thẩm mỹ cao.

Biệt thự 1 tầng mái Nhật 3 phòng ngủ
Thiết kế biệt thự 1 tầng mái Nhật 3 phòng ngủ 10.5x18m
5/5 - (3 bình chọn)

Thông tin tổng quan về mẫu thiết kế biệt thự 1 tầng mái Nhật 3 phòng ngủ 10.5x18m

Ngôi nhà được xây dựng với diện tích 200m² trên khu đất 650m², tạo điều kiện lý tưởng để phát triển không gian sân vườn xanh mát, mang lại cảm giác thư giãn và thoải mái trong từng khoảnh khắc sinh hoạt.

  • Kích thước xây dựng: 10.5x18m.
  • Diện tích xây dựng: 200m2.
  • Diện tích khu đất: 650m2.
  • Quy mô: 1 tầng.
  • Phong cách: Hiện đại. kiến trúc mái Nhật.
  • Địa điểm xây dựng: Thủy Nguyên, Hải Phòng.

Phân tích thiết kế biệt thự 1 tầng mái Nhật 3 phòng ngủ

Mỗi ngôi nhà đều được thiết kế với mục đích và nhu cầu sử dụng khác nhau. Căn biệt thự mái Nhật này được thiết kế phù hợp với gia chủ về công năng và kiến trúc:

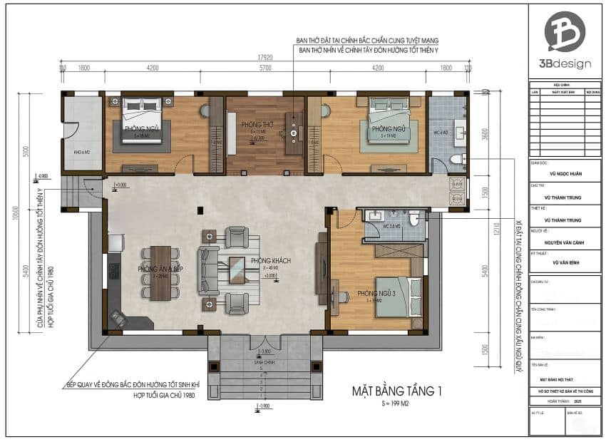
Thiết kế mặt bằng công năng khoa học

Công năng sử dụng của biệt thự bao gồm: 3 phòng ngủ, 1 phòng khách, 1 phòng bếp – ăn, 1 phòng thờ và 2 WC. Thiết kế hướng đến sự tối ưu công năng – tối đa trải nghiệm sống, phù hợp với gia đình từ 3–5 thành viên.

Phòng khách được đặt ngay sau sảnh chính, thiết kế rộng rãi với tầm nhìn mở ra sân vườn. Nội thất phòng khách theo phong cách hiện đại với lối bố trí cân bằng đối xứng. Cửa sổ mở ra nhiều hướng giúp đón ánh sáng tự nhiên và tạo tầm nhìn rộng rãi. Phòng thờ gia tiên được thiết kế kín đáo, trang trọng đảm bảo sự tôn nghiêm và yên tĩnh.

Khu vực phòng bếp kết hợp phòng ăn được thiết kế thoáng sáng với các cửa sổ kính mở ra sân vườn. Cửa sau phòng bếp giúp thông thoáng, tránh tình trạng bị bám mùi thức ăn. Không gian phòng bếp được thiết kế liên thông với phòng khách giúp mở rộng không gian sinh hoạt chung, tăng tính gắn kết và dễ bố trí công năng khi gia đình có sự kiện gặp mặt nhiều người.

Phòng ngủ master rộng rãi, bài trí hiện đại, có cửa sổ mở ra ngoài tạo cảm giác thoáng đãng và có phòng vệ sinh khép kín.Phòng ngủ con gái và phòng ngủ con trai được trang bị nội thất cơ bản, phục vụ cho sinh hoạt và học tập của trẻ.

Thiết kế công năng biệt thự
Thiết kế công năng biệt thự nhà vườn mái nhật 3 phòng ngủ

Thiết kế kiến trúc biệt thự 1 tầng 3 phòng ngủ tinh tế với mái Nhật hiện đại

Mẫu biệt thự 1 tầng mái Nhật gây ấn tượng với hệ mái dốc nhẹ, xếp lớp hài hòa, giúp thoát nước tốt và chống nóng hiệu quả – rất phù hợp với khí hậu Việt Nam. Hình khối kiến trúc đơn giản nhưng mạnh mẽ, kết hợp các mảng tường vuông vức và hệ cửa kính lớn, mang lại cảm giác thoáng đãng, hiện đại và gần gũi thiên nhiên.

Điểm nhấn nổi bật:

  • Mái Nhật màu xanh sáng sang trọng, hiện đại.
  • Tường sơn trắng kết hợp ốp đá trang trí và các mảng sơn điểm nhấn mạnh mẽ.
  • Hệ cửa nhôm kính lớn đón ánh sáng tự nhiên.
  • Sảnh chính rộng, có mái che tạo sự bề thế.

Không gian xung quanh được quy hoạch với sân vườn, lối đi, tiểu cảnh, giúp tổng thể ngôi nhà trở nên hài hòa và đẳng cấp hơn.

Thiết kế kiến trúc
Thiết kế kiến trúc biệt thự nhà vườn mái nhật 3 phòng ngủ 10.5x18m

Tham khảo các thiết kế nhà biệt thự sân vườn 1 tầng mái Nhật 3 phòng ngủ

Mẫu biệt thự nhà vườn được 3B Design thiết kế và thi công tại Thừa Thiên Huế. Một số thông tin về công trình này:

  • Phong cách kiến trúc: Nhà vườn Bắc Bộ.
  • Vị trí xây dựng: Hương Thủy, TP. Huế.
  • Quy mô: 1 tầng.
  • Diện tích xây dựng: 200m2.
  • Khuôn viên đất: 700m2.
  • Công năng sử dụng: 3 phòng ngủ, phòng khách, bếp – ăn, phòng thờ.

Tham khảo thêm một số mẫu biệt thự 1 tầng 3 phòng ngủ đẹp của 3B Design.

Ưu điểm của mẫu biệt thự 1 tầng 10.5x18m mái Nhật 3 phòng ngủ

Biệt thự mái Nhật được nhiều gia đình yêu thích, nó có nhiều ưu điểm:

  • Thiết kế 1 tầng tiện lợi, phù hợp gia đình có người lớn tuổi.
  • Phong cách hiện đại, dễ thi công, chi phí hợp lý.
  • Mái Nhật bền đẹp, chống nóng và thoát nước tốt.
  • Không gian sân vườn rộng, nâng cao trải nghiệm sống.
  • Công năng tối ưu, đáp ứng nhu cầu sinh hoạt đầy đủ.
Biệt thự vườn mái Nhật đẹp
Biệt thự vườn mái Nhật đẹp và phù hợp với kiến trúc nhà ở người Việt

Tham khảo một số mẫu thiết kế biệt thự nhà vườn đẹp.

Lưu ý khi thiết kế biệt thự 1 tầng mái Nhật

Một số kinh nghiệm mà bạn nên quan tâm khi thiết kế nhà vườn mái Nhật:

  • Lựa chọn công năng sử dụng phù hợp. Đặc biệt một số gia đình có thể quan tâm đến yếu tố phong thủy và sự hòa hợp của không gian sống trong ngôi nhà của mình.
  • Lựa chọn độ dốc mái phù hợp để đảm bảo thoát nước tốt.
  • Tối ưu hệ cửa để tăng ánh sáng tự nhiên.
  • Phân chia không gian hợp lý giữa sinh hoạt chung và riêng tư.
  • Kết hợp cây xanh để tăng tính thẩm mỹ và điều hòa không khí.

3B Design – Thiết kế thi công biệt thự nhà vườn chuyên nghiệp

Trải qua gần 15 năm kinh nghiệm trong lĩnh vực thiết kế và thi công xây dựng, 3B Design là đơn vị thiết kế, thi công kiến trúc xây dựng chuyên nghiệp. Chúng tôi có quy trình làm việc rõ ràng. Các cam kết về thiết kế, thi công xây dựng trách nhiệm, uy tín.

Cam kết về thiết kế

3B Design cam kết chất lượng và tiến độ thiết kế:

  • Tối ưu không gian sử dụng.
  • Thiết kế cá nhân hóa cho từng gia chủ.
  • Thiết kế đúng tiến độ, đúng tiêu chuẩn.
  • Tư vấn thiết kế tận tâm, chu đáo với đội ngũ kiến trúc sư là chuyên gia với gần 15 năm kinh nghiệm.
  • Cam kết hoàn tiền nếu không ưng ý thiết kế.

Cam kết về chất lượng thi công của 3B Design:

  • Hỗ trợ thủ tục pháp lý (giấy phép xây dựng, cải tạo…).
  • Sử dụng vật tư, vật liệu nguồn gỗ rõ ràng, đúng báo giá – Sai chủng loại bồi thường gấp đôi.
  • Đảm bảo tiến độ thi công.
  • Có kỹ sư giám sát tại công trình. Báo cáo chất lượng thi công hàng tuần.
  • Bảo hành công trình xây dựng 5 năm.

Quy trình thiết kế tại 3B Design

3B Design có quy trình thiết kế minh bạch, rõ ràng:

  • Bước 1: Tư vấn sơ bộ.
  • Bước 2: Khảo sát thực tế.
  • Bước 3: Thiết kế công năng và phối cảnh 3D.
  • Bước 4: Triển khai bản vẽ kỹ thuật.
  • Bước 5: Bàn giao hồ sơ

    3B DESIGN CAM KẾT

    Hoàn tiền thiết kế

    Hoàn 100% chi phí thiết kế khi khách hàng không hài lòng

    Đảm bảo đúng tiến độ cam kết

    Thiết kế và thi công đảm bảo đúng quy trình, đúng tiến độ

    Chịu trách nhiệm hết vòng đời sản phẩm

    Cam kết bảo trì sản phẩm vĩnh viễn, định kỳ 6 tháng/lần

    Bảo hành 3 năm

    Các sản phẩm được bảo hành 3 năm. Được sửa chữa MIỄN PHÍ nếu xảy ra lỗi từ nhà sản xuất

    Bảo hành sau 3h

    Cam kết có mặt chậm nhất 3h sau khi khách hàng báo bảo hành

    Hỗ trợ tháo lắp

    Hỗ trợ tháo lắp khi gia chủ có nhu cầu thay đổi nơi ở mới

    Mẫu thiết kế biệt thự 1 tầng 10.5x18m 3 phòng ngủ mái Nhật là lựa chọn lý tưởng cho những gia đình mong muốn một không gian sống hiện đại – tiện nghi – gần gũi thiên nhiên. Không chỉ đáp ứng đầy đủ công năng, mẫu biệt thự còn mang lại giá trị thẩm mỹ bền vững, thể hiện phong cách sống tinh tế của gia chủ.

    Bạn hãy liên hệ ngay với 3B Design để được tư vấn thiết kế, thi công xây dựng nhà ở tốt nhất nhé!

    icon hotline HOTLINE: 0981.017.386
    icon đặt lịch thiết kế ĐẶT LỊCH THIẾT KẾ